皆さんこんにちは!
最近ノートPCを新調した高専生ライターの”ひろまる”です!
(Let’snoteからVAIOに変更しました!Let’snoteはサブ機として使っていきます!)
さて、突然ですが私は現在函館高専の生産システム工学科機械コースに所属しています。
このコースでは主に四力(材料力学、流体力学、熱力学、機械力学)や実習を通して機械技術者としての基礎を学びます!
目次
機械技術者としての基礎! 設計製図Ⅰ
今回はそんな機械工学を学ぶ現役学生が、実際に行われている「設計製図Ⅰ」という科目に焦点を当て、機械について語っていきます!

え?今回って結局どんな物をつくるの?
↓
↓
↓
今回は先生から「パンタグラフ式ねじジャッキを設計せよ!」との指示が出ました!
パンタグラフ式ねじジャッキを設計せよ!
これは主に車がパンクした際に用いられ、非常用に乗用車のトランクに備え付けられています!(ご自宅の車で確認してみてください!)
今回は、先生から
「”ひろまる”は800Kgの物を240mm持ち上げることのできるジャッキを作って!」
との指示が出ました…見習い設計者“ひろまる”頑張って設計します!
まずはコンセプト決めと簡単な設計を行う
さてそれでは最初に計画書を作成していきます。
計画書ではスケジュールや設計方針、大まかな外形把握を行います。
今回は、ジャッキの日本産業規格である“JIS D 8103-1994”を満たすとともに, 錆びに強く、大量生産とそれに伴った材料の入手の容易さを意識した設計を行うことを前提に設計します!

次に材料を決めて細部の設計計算を行う
計画書ができたらそれに沿って細部の計算を行っていきます。
ここで使う知識は”材料力学””機械力学””材料学””機械設計法”ですね~
材料は錆に強く、入手しやすいSUS(ステンレス材)を使います!

ちなみにこの計算部分でしっかり計算しないと800Kg以内で破壊してしまったりするので絶対に間違わないように設計しつつ、安全率という考え方を用いて800Kgを少し超えても壊れないように設計します。(相手には800Kgが最大上限と伝えます(笑))
3Dで作って2D図面に落とし込む!
ITが普及した現代は製図も全てPCで行います。
今回の製図でも計算で求めた値を用いて3Dで設計した後に2D図面に落とし込みます!

実際に作成したアームの3Dモデルです!色が黒いのは材料がステンレスだからですね~
ちなみに3Dで作った部品は組み立てることができ、最後に実際に組み立ててみて不具合なく動くかを簡易的ですがシミュレーションします!

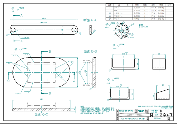
最後に2D図面に直して寸法を入れていく!
ここまで来たら2Dモデルに変換し、寸法入れていきます。
寸法の誤差範囲などの指定は設計者が自由に決めることができますので、私も色々指定していきます!
例えば、ピンなどが入るような穴は誤差が大きいとピンが入らないことが考えられるため、高精度で穴をあけるように指示します。
ですが、一番下の台座部分は多少の寸法誤差があっても問題ないので
「精度が低くても良いですよ~」と指定してあげます。
こうすることで全体の加工時間が減り、同じ時間で より多くの製品を作ることができるんです~

最後に…
いかがだったでしょうか?
今回はいつもの趣味系から嗜好を変えて真面目系の記事でした!
基本的に、機械技術者には数学的知識や順応性、多方面の知識が求められる為、
日々勉強は怠らず常に情報をアップデートしていかなければなりません。
そんな技術者になるために本日も勉学に励んでまいります!
それでは最後までお付き合いくださり、ありがとうございました!